LOCACIÓN:
Normandy Isle
Miami
EE.UU.
DESTINO:
Vivienda Unifamiliar
m2: 658
ARQUITECTO:
Arq. Nazareno Navone
EQUIPO DE PROYECTO:
Arq. Constanza Marzano
Arq. Julia Busan
AÑO:
2015
ESTADO:
Proyecto

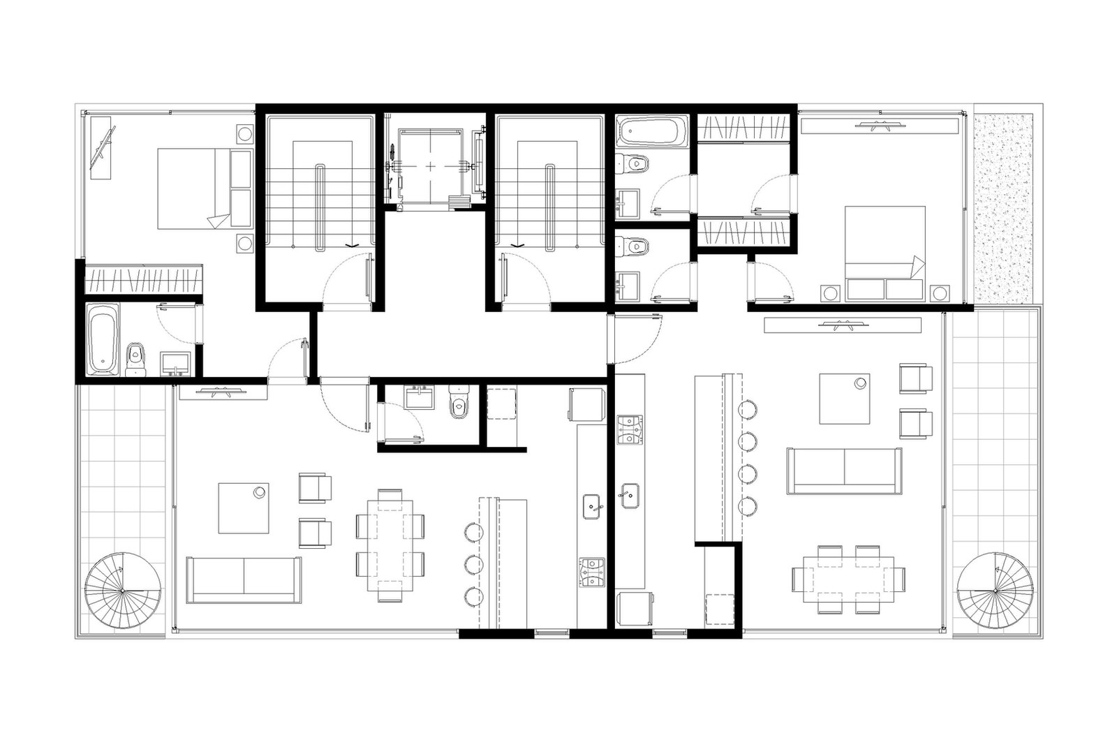
PLANTA TIPO