LOCACIÓN:
Esquina Calle 16 y Calle 148
Berazategui
Buenos Aires
Argentina
DESTINO:
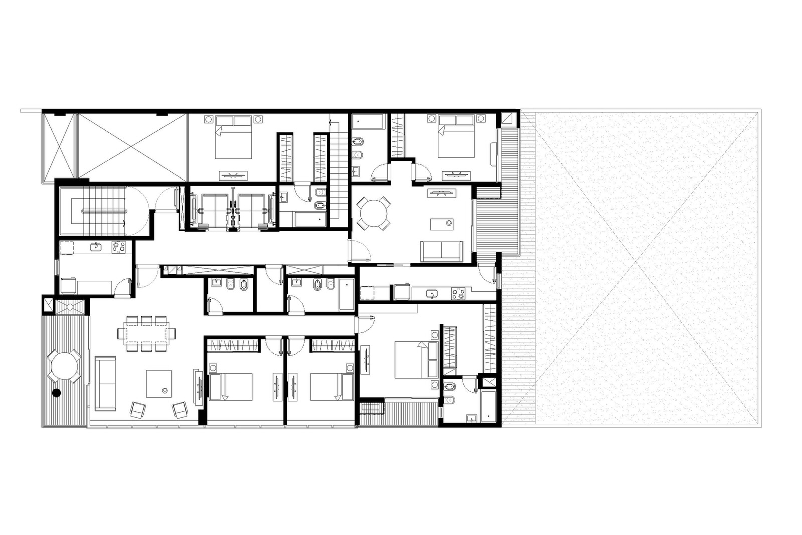
Vivienda Multifamiliar. 43 Unidades.
m2: 3780
ARQUITECTO:
Arq. Nazareno Navone
EQUIPO DE PROYECTO:
Arq. Constanza Marzano
Arq. Julia Busan
ESTRUCTURAL:
Cygnus
ESTUDIO DE SUELOS:
AGH Consultores S.A.
SANITARIA:
Arq. Fernando Giorgi
AÑO:
2014
ESTADO:
Construcción


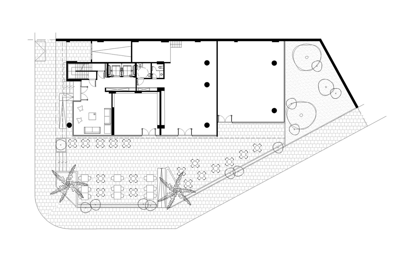
PLANTA BAJA
PLANTA TIPO 2° 4° 6° 8°
PLANTA TIPO 3° 5° 7°